< zurück

ID: 18636 | Weingarten

Provisionsfrei: Mehr als Wohnen: 2-Zimmer-Wohnung in den Martinshöfen Weingarten

Objektart:Wohnung

Zimmer:2

Wohnfläche:48.68 qm

Kaufpreis:310.000 €

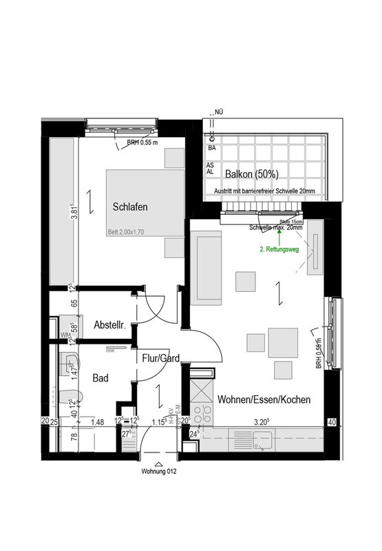
Grundriss

Wohnzimmer + Schlafzimmer = Zuhause.
Die 2-Zimmer-Wohnung in den BUWOG MARTINSHÖFEN ist die perfekte Basis für Singles oder Paare und folgt dem allgemeinen Trend zur Fokussierung auf das Wesentliche in einer angenehm komfortablen Weise. Der großzügige Wohn-Ess-Bereich mit Küche spart Platz und lässt die Wohnung so viel größer erscheinen.

Energieausweis: Endenergiebedarf

Endenergiebedarf: 19.6 kWh/(m²·a)

Baujahr: 2028

Heizungsart:Wärmepumpe

Energieeffizienzklasse:A+

163 Exposé-Aufrufe

Ihr Ansprechpartner Frank Baur

Ihr Ansprech­partner für dieses Objekt

(Objekt ID 18636)

Frank Baur
Telefon: 0751 56156-0
E-Mail: info@baur-immobilien.de

Hinweis zur Provision: Der Ordnung halber weisen wir darauf hin, dass wir dem Käufer des Objektes eine Nachweisprovision in Höhe von 3,57 % inkl. MwSt. aus dem Kaufpreis in Rechnung stellen!

Expose anfordern

Direkt auf Ihre Anfrage erhalten Sie den Zugang zum Exposé dieses Objektes. Nach Erhalt dieser ersten Informationen besteht für Sie die Möglichkeit, uns Ihre Fragen zum Objekt zu stellen oder auch direkt einen Termin für eine Besichtigung zu vereinbaren.

SPAM-Schutz: Bitte tragen Sie die im Bild sichtbaren Zahlen ein.

*Pflichtfelder