< zurück

ID: 17849 | Meßkirch

Geschäftshaus / Renditeobjekt in zentraler Lage von Meßkirch mit Entwicklungspotenzial

Objektart:Haus

Zimmer:18

Wohnfläche:791 qm

Grundstückfläche:988 qm

Kaufpreis:689.000 €

Grundriss

In attraktiver, zentraler Lage von Meßkirch befindet sich dieses vielseitig nutzbare Geschäftshaus in einem Mischgebiet. Die Immobilie umfasst insgesamt vier Einheiten mit einer Gesamtfläche von ca. 791 m² und steht auf einem großzügigen Grundstück mit 988 m², 15 Pkw-Stellplätze sowie zwei Garagen sind ebenfalls vorhanden.
Das Gebäude bietet eine interessante Kombination aus bereits vermieteten und aktuell freien Flächen, wodurch sich sowohl für Kapitalanleger als auch für Eigennutzer mit Vermietungsabsicht attraktive Perspektiven ergeben.
Flächenaufteilung:
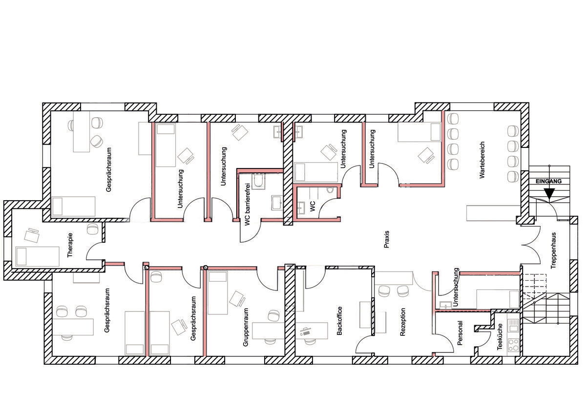
• Erdgeschoss (ca. 207 m²):
Arztpraxis mit 12 Räumen, Flur und WC. Die Einheit ist über einen Staffelmietvertrag vermietet. Ab Juli 2026 beträgt die Kaltmiete EUR 1.850,00. In 2028 steigt diese auf EUR 2.000,00

• Obergeschoss (ca. 208 m²):
Kampfsportstudio mit vier Räumen sowie Empfangs- und Flurbereich. Aktuelle Kaltmiete: 1.386,00 EUR. Es handelt sich hier bei um einen Indexmietvertrag von 2024.
• Dachgeschoss (ca. 197 m²):
Großer Trainingsraum, Büro, WC und Flur. Die Einheit ist derzeit leerstehend und bietet vielfältige Nutzungsmöglichkeiten, beispielsweise als Yoga-, Fitness- oder Kreativstudio.
• Untergeschoss (ca. 179 m²):
Mehrere Sanitärbereiche (Duschen und WCs für Damen und Herren) sowie eine Außensauna. Teilflächen (2 x WC-Räume) sind an die Arztpraxis im EG vermietet. Die restlichen Flächen eignen sich ideal für Wellness-, Sauna- oder Massageangebote.
Objektzustand und Historie:
Das Ursprungsbaujahr des Gebäudes wird auf vor 1937 geschätzt (keine Unterlagen beim Bauamt vorhanden). Im Jahr 2006 erfolgte eine umfassende Modernisierung mit genehmigter Nutzungsänderung zum Fitnessstudio. 2024 wurde das Erdgeschoss zusätzlich in eine Arztpraxis umgewandelt.

Haben wir Ihr Interesse geweckt? Den vollständigen Text finden Sie in unserem Exposé. Der Energieausweis wird zur Besichtigung vorgelegt!

Energieausweis: liegtZurBesichtigungVor

Baujahr: 1937

Heizungsart:Zentralheizung

Befeuerung:Gas

176 Exposé-Aufrufe

Ihr Ansprechpartner Sonja Fa

Ihr Ansprech­partner für dieses Objekt

(Objekt ID 17849)

Sonja Fa
Telefon: 0751 56156-0
E-Mail: info@baur-immobilien.de

Hinweis zur Provision: Der Ordnung halber weisen wir darauf hin, dass wir dem Käufer des Objektes eine Nachweisprovision in Höhe von 3,57 % inkl. MwSt. aus dem Kaufpreis in Rechnung stellen!

Expose anfordern

Direkt auf Ihre Anfrage erhalten Sie den Zugang zum Exposé dieses Objektes. Nach Erhalt dieser ersten Informationen besteht für Sie die Möglichkeit, uns Ihre Fragen zum Objekt zu stellen oder auch direkt einen Termin für eine Besichtigung zu vereinbaren.

SPAM-Schutz: Bitte tragen Sie die im Bild sichtbaren Zahlen ein.

*Pflichtfelder